Ваш каркасный дом в стиле Барнхаус площадью 84м2. Он станет идеальным местом для отдыха и проведения времени с семьей и друзьями.
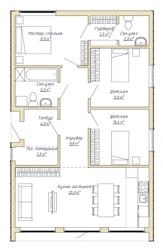
Общая площадь дома 84м2
Теплый контур 84м2
Кухня-гостиная – 1
Спальня – 3
С/узел – 2
Тамбур – 1
В стандартную комплектацию входит:
-переливной септик на 6м3.
-все инженерные коммуникации, включая теплый пол
-идеально ровный пол (п/сухая стяжка)
-идеально ровные стены (гипсокартон),
-фасад и кровля КЛИК ФАЛЬЦ + планкен (скрытый крепеж)
-5-ти камерные окна VЕКА с хорошей фурнитурой и мультифункциональным покрытием.
Ждем ваши заявки! С удовольствием воплотим вашу мечту в жизнь!
Выбор местоположения
Мы свяжемся с Вами в течение дня.